价格:¥6600.00/套
品牌:中德
主机:碳钢、不锈钢
安装配件:碳钢、不锈钢、
叶轮:碳钢、不锈钢、
起订:1套
供应:180套
发货:3天内
Q-W4-615混合液回流泵 厂家直销 质保一年 保修 南京中德环保
Q-W 型污泥回流泵
产品使用范围:
Q-W型污泥回流泵是在潜水搅拌机生产技术基础上开发的混合产品,
该泵为二级污水处理厂混合液回流、反硝化脱氮的用设备,亦可以用于地面排水时抽净化水;
灌溉和控制水道系统;废水处理过程中再循环或泥浆抽吸回路中需要微扬程、大流量场所。
使用条件:
1、连续运行时,介质温度不高于40℃;
2、介质PH 值为6-9。
3、潜没深度10m。
特点:
该曝气机由潜水电泵与喷射泵组成,从而使水体搅动与充氧同时进行,既可获得较高的氧气吸收率,
又具有叶轮无堵塞优点。强有力的单向液流,造成有效的对流循环,且电机负荷随水位的变化很小,安装简单。
使用情况:
专门设计的装置部件和设备备件使污泥回流泵达到合理性能。
1、电缆:电缆采用特制水密电缆;
2、接线盒:接线盒是全封闭的,与周围液体和定子箱是隔离的;
3、电机:50Hz 鼠笼式3 相潜水异步电动机,F 级绝缘,防护等级IP68。电机由周围介质冷却;
4、轴:电动机的轴采用不锈钢材料制作,转子作动平衡试验;
5、密封:静密封为O 型密封圈。轴密封为机械密封,将油室与周围介质隔离;
6、轴承:采用进口轴承,设计使用寿命可达100,000 小时以上;
7、油室:油用于润滑和冷却机械密封摩擦副,并隔离渗透液;
8、叶轮:叶轮有三枚叶片,叶片宽而薄,表面光滑呈后掠式,高效、无阻运转,且具有自清功能;
9、进口锥管:进口锥管的目的是为了形成好的流动状态;
10、排出接头:排出接头用于将进口锥管固定在出水管上;
11、引导装置:引导装置由两根管子(导管)和上方导管夹具所组成。
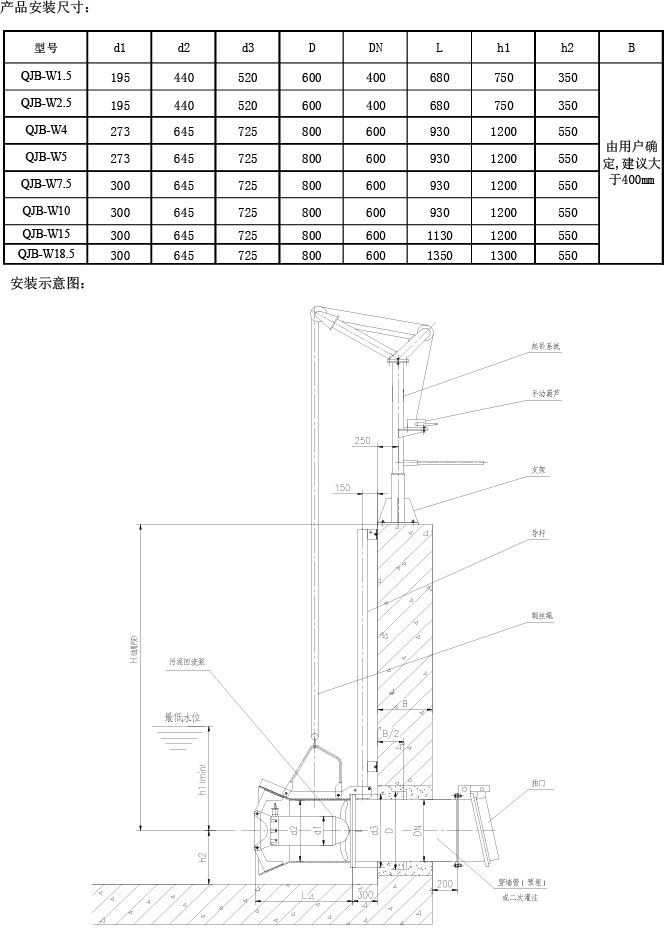
型号表达:
产品特点:
1、按微扬程大流量门设计,效率高;
2、抗堵塞、缠绕,使用可靠;
3、采用新的密封材料,可以安全连续运行10000 小时以上;



了解更多的价格,欢迎联系,获取方案及报价、咨询:
南京中德环保设备制造有限公司
采购咨询:025-5753 0868 徐敏(经理) 189 13960 189


